CAD-Vantage Design can create highly accurate and detailed 2D CAD drawings from sketches, survey data or pointclouds.
With over six years’ experience preparing plans for clients in the construction industry, you can rely on us to produce drawings presented to the very highest standard and tailored to the needs of your project. Some of the services we offer include:
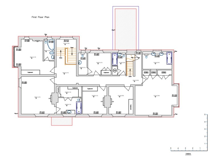
Floor, Ceiling and Roof Plans

We produce floor, ceiling and roof plans of buildings for accurate as-built surveys, detailed design concepts and visually appealing estate agents’ plans, fully annotated with key information such as horizontal and vertical dimensions, room functions and area calculations.
Whether you’re an architect, estate agent, or construction professional, we will ensure you have the perfect plans to take your project forward.
Elevations and Sections

We create elevation and sectional drawings from on-site measurements, drawn to a high level of detail to comply with RICS standards for measured building surveys. We can also digitize sketches of new building designs, ensuring you have a fully measurable plan at 1:1 scale.
Vital for assessing the relationship of spaces and levels in a site or building, we also produce accurate and professionally presented section drawings. We can also produce sections for topographical site features such as watercourses, stairs and ground undulations, to help you visualise your site.
Land Registry Plans
We can also produce fully Land Registry-compliant plans from survey data or site measurements. Whether you are registering a new property, selling land or in a dispute, a Land Registry compliant plan produced by CAD-Vantage Design can give you the edge in your case or project.
All plans can be produced in DWG/DXF formats, as well as a to-scale PDF for easy reading on-site or without CAD software. Working remotely, we can often complete 2D CAD drawings for the next working day, minimising down-time and allowing you to progress with your project as quickly as possible.
Get in touch for a competitive quotation today.
About Us
David Lewis MCInstCES (trading as CAD-Vantage Design) is a freelance CAD and BIM technician with a wealth of industry experience.


